cafe design | Retail food design
ROASTING WAREHOUSE AIRPORT WEST
A roasting and retail headquarters for a Melbourne Coffee brand that engages its customers every step of the way.
case study
Eon Design began working with Roasting Warehouse in 2017, designing their first cafe roastery in North Melbourne.
The subsequent success of the brand meant they needed larger-scale roasting capabilities to cover the wholesale and retail demands. They asked us to continue working with them to expand their operation at a new venue at Airport West.
-
Location | Airport West, Victoria
Services | Interior Design
Completed | 2019
Photos | Christine Wood Photography
-
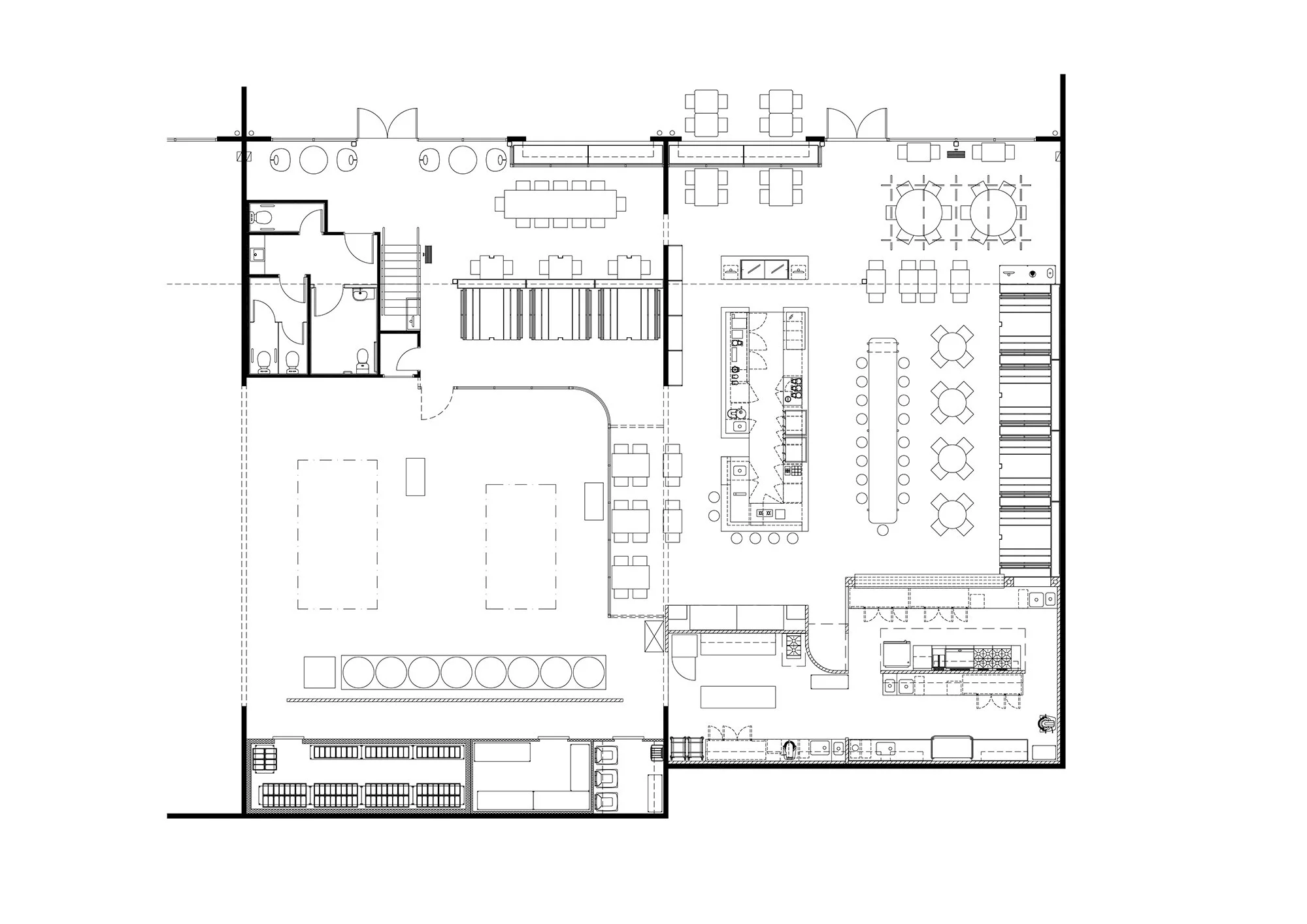
Their vision for their new roasting headquarters was to have a friendly and inviting space where they can engage directly with their customers, allowing them to take in the aromas, sights, and sounds associated with coffee roasting while operating as a cafe and casual eatery.
-
The first challenge was to transform a large open area warehouse and incorporate full-scale coffee roasting operations with an inviting cafe and retail space. The second challenge was to connect this venue to its very industrial neighbourhood.
-
Provide a Total Immersive Experience. We decided to break down the expansive warehouse space into smaller, intimate areas and offer a wide variety of seating options, including a super-long communal table, bar stools at the central counter and booth seats.
The large scale coffee roasting happens behind a full-height curved glass wall allowing customers to see every part of the process. Coffee is served at the centrally located bar, placing customers right at the heart of the venue. Integrated product displays allow customers to browse while in a relaxed cafe environment.
Large windows with louvres fill the space with daylight and fresh air and provide a visual connection to the street. This venue doesn’t hide from its industrial location. Instead, it opens up to the neighbourhood and welcomes everyone inside.
Learn more about our work with Roasting Warehouse.Roasting Warehouse North Melbourne →
